Mẫu thiết kế nhà phố 1 trệt 1 lầu 1 sân thượng đơn giản

posted in: Mẫu nhà phố đẹp | 0

Mẫu thiết kế nhà phố đẹp 2,5 tầng.

Mặt tiền của mẫu thiết kế nhà đẹp này tương đối đơn giản, duyên dáng với dàn lam cho dây leo để giảm bụi và giảm ồn.

mau nha pho hon gian
PHỐI CẢNH MẶT TIỀN

Tông màu trắng cho phòng khách và bếp ăn thêm rộng rãi. Mẫu thiết kế nhà phố 3 tầng với dàn kệ gỗ màu đen tạo điểm nhấn cho không gian thêm sinh động.

phong khach
NỘI THẤT PHÒNG KHÁCH

Phòng bếp rộng hơn với gam màu trắng làm chủ đạo.

phong bep
NỘI THẤT PHÒNG BẾP

Gian bếp đơn giản, hiện đại lấy sáng tự nhiên từ sân sau, buổi tối có ánh sáng vàng làm cho không gian phòng ăn thêm ấm áp.

phong lam viec
PHÒNG LÀM VIỆC
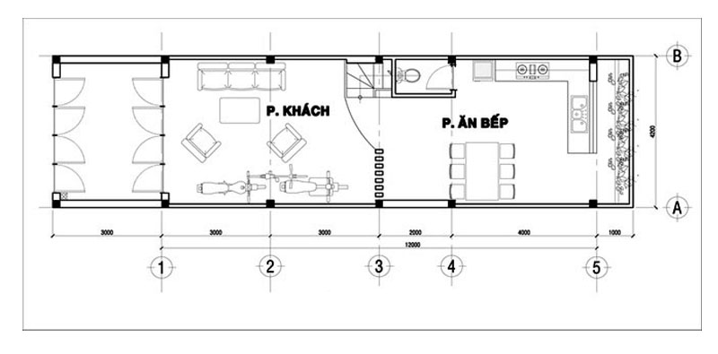
01 mat bang bo tri tang tret
MẶT BẰNG BỐ TRÍ TRỆT
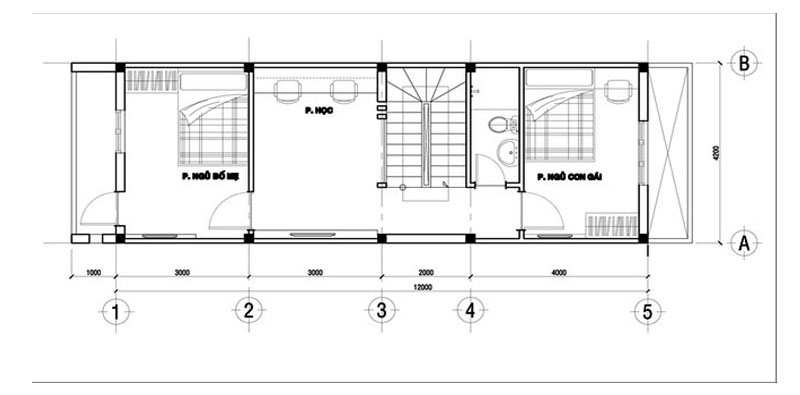
02 mat bang lau
MẶT BẰNG BỐ TRÍ LẦU

Tin liên quan

  • NGÔI NHÀ PHỐ ĐẸP ĐƠN GIẢNNGÔI NHÀ PHỐ ĐẸP ĐƠN GIẢN Không gian của căn nhà phố đẹp 87m2 được thiết kế điển hình cho phong cách trang nhã, tươi sáng với nội thất nhiều màu sắc. Phòng khách như được tắm trong ánh sáng. Phòng ăn và phòng […]
  • MẪU NHÀ PHỐ MẶT TIỀN 5M – 3 TẦNG ĐẸP HIỆN ĐẠIMẪU NHÀ PHỐ MẶT TIỀN 5M – 3 TẦNG ĐẸP HIỆN ĐẠI Đón đầu xu hướng thiết kế nhà phố đẹp 2017 , Nhà Đẹp Phúc An giới thiệu đến bạn mẫu nhà phố đẹp hiện đại với mặt tiền 5m - 3 Tầng. Với thiết kế hiện đại, tối ưu không gian sử dụng, là điểm […]
  • THIẾT KẾ NHÀ PHỐ 4 TÂNG ĐẸP TRÊN MẢNH ĐẤT MÉOTHIẾT KẾ NHÀ PHỐ 4 TÂNG ĐẸP TRÊN MẢNH ĐẤT MÉO Ngôi nhà 4 tầng nổi bật trong ngõ được xây dựng trên mảnh đất méo được kiến trúc sư biến thành một không gian sang trọng với mặt tiền sử dụng gạch đỏ, bê tông mộc mạc. Thiết kế nhà phố đẹp […]
  • MẪU NHÀ PHỐ MẶT TIỀN 5M 4 TẦNGMẪU NHÀ PHỐ MẶT TIỀN 5M 4 TẦNG Với diện tích 5x20m, Thiết kế nhà phố với phong cách hiện đại và không gian thoáng, diện tích sử dụng được tối ưu để tạo ra không gian sử dụng được nhiều nhất. Trong cuộc sống hiện đại, […]
  • Nội thất chung cư với gam màu gổ tự nhiênNội thất chung cư với gam màu gổ tự nhiên Nội thất chung cư với gam màu gổ tự nhiên Gỗ là một trong những vật liệu cơ bản nhất và có thể được sử dụng trong vô số cách khác nhau. Nhưng ngoài sàn gỗ, nhiều thiết kế hiện đại có xu […]
  • Mẫu nhà phố hiện đại 3 tầngMẫu nhà phố hiện đại 3 tầng Mẫu nhà phố hiện đại 3 tầng. Tầng 1 có gara rộng, phòng khách và phòng bếp liên thông, các tầng trên giành riêng cho không gian ngủ nghỉ và sinh hoạt của gia […]
Bookmark and Share